Interreg ornament
InnoWood
buildings

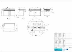
Technical drawing of the products

This website uses cookies in order to provide best possible functionality. By using the website you agree with the utilisation of cookies. More information